Dodatkowy garaż w.D
Dodatki1250 zł


- Powierzchnia użytkowa:45,13m²
- Minimalne wymiary działki:14,66 x 15,64 m
- Powierzchnia zabudowy:57,54 m²
- Wysokość budynku:3,14 m
Szukasz podobnego projektu Zobacz  - > PROJEKTY PO ZMIANACH, lub skontaktuj sie z nami-> KONTAKT
W cenie projektu zyskujesz:
PROJEKTY ZOPTYMALIZOWANE POD WZGLĘDEM KONSTRUKCJI I ENERGOOSZCZĘDNOŚCI
750 zł0 zł
PROJEKT PRZYSTOSOWANY DO POWIETRZNEJ POMPY CIEPŁA i OGRZEWANIA PODŁOGOWEGO
750 zł0 zł
PROJEKT z wentylacją mechaniczną z rekuperacją
15 zł0 zł
BEZPŁATNA DOSTAWA KURIEREM
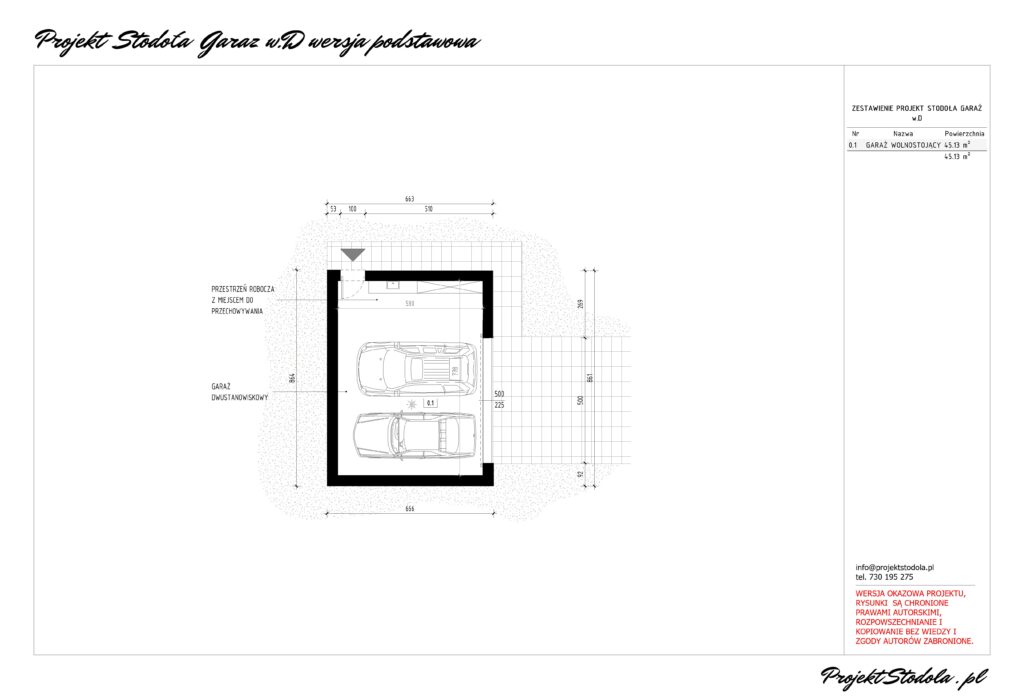
RZUT:
SCHEMATYCZNE PRZEKROJE:
- Przekój 1
- Przekój 2
FUNKCJA:
Garaż dwustanowiskowy, z płaskim dachem o prostej, nowoczesnej bryle został zaprojektowany tak, aby pasował do architektury typu nowoczesna stodoła.
W budynku zaprojektowano dwa wygodne stanowiska postojowe, które zapewniają komfortowe parkowanie samochodów. Wewnątrz znajduje się także wydzielona wnęka gospodarcza, idealna na mały warsztat lub miejsce do przechowywania narzędzi i sprzętu ogrodowego. Dodatkowym udogodnieniem jest niezależne wejście, które ułatwia korzystanie z części gospodarczej bez konieczności otwierania bramy garażowej. Dla zwiększenia wygody użytkowania zaproponowano także zlew gospodarczy.
Dzięki prostej konstrukcji garaż wolnostojący można łatwo dopasować do stylu domu, zmieniając materiały wykończeniowe elewacji lub detale architektoniczne tak, aby całość tworzyła spójną i estetyczną zabudowę.
RZUT:
SCHEMATYCZNE PRZEKROJE:
- Przekrój 1
- Przekrój 2
FUNKCJA:
Garaż dwustanowiskowy, z płaskim dachem o prostej, nowoczesnej bryle został zaprojektowany tak, aby pasował do architektury typu nowoczesna stodoła.
W budynku zaprojektowano dwa wygodne stanowiska postojowe, które zapewniają komfortowe parkowanie samochodów. Wewnątrz znajduje się także wydzielona wnęka gospodarcza, idealna na mały warsztat lub miejsce do przechowywania narzędzi i sprzętu ogrodowego. Dodatkowym udogodnieniem jest niezależne wejście, które ułatwia korzystanie z części gospodarczej bez konieczności otwierania bramy garażowej. Dla zwiększenia wygody użytkowania zaproponowano także zlew gospodarczy.
Dzięki prostej konstrukcji garaż wolnostojący można łatwo dopasować do stylu domu, zmieniając materiały wykończeniowe elewacji lub detale architektoniczne tak, aby całość tworzyła spójną i estetyczną zabudowę.
Jesteś miłośnikiem motoryzacji, masz dużo samochodów lub może brakuje Ci miejsca do przechowywania? A może po prostu chcesz zbudować garaż w innym miejscu niezależnie od budynku, a przestrzeń przy budynku wykorzystać na siłownię? Mamy dla Ciebie świetną opcję! Wolnostojący garaż dwustanowiskowy to jeden z dodatków, jakie można dokupić do naszych Stodół. Jest on zaprojektowany w taki sposób, by wizualnie korespondować z budynkiem mieszkalnym. Garaż wolnostojący dwustanowiskowy w wersji D, dzięki prostej bryle i płaskiemu dachowi pasuje do większości projektów Stodoła, przy czym materiały wykończeniowe można dowolnie zmienić i dopasować do bryły domu. Świetnie kolorystycznie pasuje do Projekt Stodoła Optimum
Budynek świetnie sprawdzi się jako garaż lub dodatkowy budynek gospodarczy do składowania narzędzi, sprzętów niezbędnych do utrzymania działki, czy przedmiotów związanych z Twoją pasją. W budynku można dostosować dach do innego kąta nachylenia.
STANDARD BUDYNKU I TECHNOLOGIA BUDOWY
ŚCIANY MUROWANE: dwuwarstwowe – bloczek gazobetonowy + wełna skalna / styropian
ELEWACJA: tynk silikonowy + deska drewniana
STROP: strop drewniany + papa termozgrzewalna lub membrana EPDM
MINIMALNE WYMIARY DZIAŁKI:
Najlepszym usytuowaniem jest wjazd od strony dłuższego boku, ale bardzo dobrze sprawdzi się również wjazd od węższego boku(jako zmiana w projekcie), w zależności jak usytuujesz budynek główny na działce, tak by budynek garażu korespondował z budynkiem głównym.
MINIMALNE WYMIARY DZIAŁKI:
Najlepszym usytuowaniem jest wjazd od strony dłuższego boku, ale bardzo dobrze sprawdzi się również wjazd od węższego boku(jako zmiana w projekcie), w zależności jak usytuujesz budynek główny na działce, tak by budynek garażu korespondował z budynkiem głównym.
KOSZT BUDOWY
Dobrze wiemy, jak w dzisiejszych czasach trudno jest oszacować koszty budowy, szczególnie, że potrafią się one zmieniać z miesiąca na miesiąc. Bardzo dbamy o to, by nasze kosztorysy były jak najbardziej dokładne. Wyceniamy projekty bazując na sprawdzonych technologiach i dobrych materiałach, gdyż one gwarantują trwałość budynku i bezawaryjne funkcjonowanie. Nie zaniżamy cen. Projektując stosujemy proste rozwiązania, bez „ozdobników”, by nasze projekty z założenia nie były drogie w budowie, miały duże możliwości etapowania i wariantowania pracy.
Dołącz do naszej grupy na Facebooku Projekt Stodoła- budowa domu typu stodoła i porozmawiaj z inwestorami, którzy są w trakcie budowy lub już ją zakończyli.
KOSZTORYS UPROSZCZONY
w trakcie opracowania
BUDOWA DOMU STODOŁA & PREFABRYKOWANA STODOŁA
Zależy Ci na czasie, chciałbyś zbudować Stodołę nawet w 4-5 miesięcy? Jest to możliwe w przypadku budowy domu z prefabrykatu.
Nasze projekty mogą być z powodzeniem realizowane w technologii prefabrykatu.
Wystarczy zakupić projekt w naszej pracowni, a wybrana firma wykonawcza specjalizująca się w prefabrykacji może dostosować dokumentację projektową do swojej technologii. Taka adaptacja często wykonywana jest w ramach usługi oferowanej przez producenta prefabrykatów.
Budowa z prefabrykatów jest zazwyczaj droższa o ok. 15-25% w stosunku do kompleksowej, tradycyjnej budowy. Aby uzyskać dokładną wycenę, najlepiej skontaktować się bezpośrednio z wybranym wykonawcą.
Projekt Stodoła współpracuje z firmą wykonawczą w technologii prefabrykatu keramzytowego (tylko na obszarze w promieniu 100km od Wrocławia).
Jeśli interesuje Cię ten temat napisz do nas maila z informacją odnośnie lokalizacji inwestycji (tylko z okolic Wrocławia) na: [email protected]
2. Dobierz dodatki do projektu
Dodatki do projektu
Opisy informacyjne dodatków 
Wersja elektroniczna

Koszt 300 zł
Dodatkowy egzemplarz projektu

Koszt 300 zł
Podkład do projektowania wnętrz w .dwg

Koszt 300 zł
Dodatkowe wizualizacje

Koszt 750 zł
Model 3d budynku w .skp

Koszt 1150 zł
Kosztorys

Koszt 450 zł
Dobór i projekt fotowoltaiki

Koszt 800 zł
Smart Home konsultacja ze specjalistą
Zagadnienia z tematyki Smart Home poruszane na spotkaniu lub spotkaniu online
- Smart Home a zwykła instalacja – podstawowe różnice
- Systemy Smart
- Home – przewodowe i bezprzewodowe – szczerze, bez mitów
- Sterowanie oświetleniem
- Zacienianie – rolety, żaluzje, karnisze elektryczne
- Oszczędność energetyczna – zagadnienia związane ze sterowaniem ogrzewaniem i wentylacją – czy to się opłaca?
- Systemy audio multiroom
- Bezpieczeństwo – alarm i monitoring, kontrola dostępu
- Smart Gardens – inteligentne ogrody
- Po spotkaniu – sporządzenie wstępnego kosztorysu
Koszt 615 zł
Projekt wykonawczy ogrzewania podłogowego z pompą ciepła

- dokładnie rozrysowane rozstawy pętli grzewczych.
- dobór konkretnych materiałów i średnic
- zestawienie materiałów z kosztorysem
Czas realizacji ok. 2,5 tygodnia. Po zamówieniu prześlij do nas planowaną lokalizację budynku oraz materiał wykończeniowe podłogi.
Koszt 900 zł
Projekt wykonawczy wentylacji mechanicznej z rekuperacją

- dokładnie rozrysowane układ wentylacji
- dobór konkretnych materiałów i średnic
- zestawienie materiałów z kosztorysem
Czas realizacji ok. 2,5 tygodnia. .
Koszt 900 zł
Połączenie instalacji z kominkiem z płaszczem wodnym

Czas realizacji ok. 2,5 tygodnia. .
Koszt 400 zł
Wersja elektroniczna pdf
300 zł
Podkłady do projektowania wnętrz w .dwg
450 zł
Dodatkowe wizualizacje
950 zł
Dodatkowy egzemplarz projektu
300 zł
Makieta 3d budynku (mała)
550 zł
Makieta 3d budynku (duża)
950 zł
Pakiet zawiera:
- Dodatkowy egzemplarz projektu
- Wersję elektroniczną
600 zł520 zł Oszczędzasz 80 zł
Pakiet zawiera:
- Dodatkowy egzemplarz projektu
- Wersję elektroniczną
- Podkłady do projektowania wnętrz w .dwg
1050 zł790 zł Oszczędzasz 260 zł
Pakiet zawiera:
- Dodatkowy egzemplarz projektu
- Wersję elektroniczną
- Podkłady do projektowania wnętrz w .dwg
- Rysunki elewacji w .dwg
- Model 3d budynku w .skp
2400 zł1550 zł Oszczędzasz 850 zł
CO ZAWIERA PROJEKT?
W ramach zamówionego Produktu obejmującego Projekt Typowy Kupujący otrzymuje:
- 3 egzemplarze projektu ARCHITEKTONICZNO-BUDOWALNEGO i 2 egzemplarze projektu TECHNICZNEGO wraz z elementami wykonawczymi konstrukcji.
Szczegółowy opis zawartości projektu wraz z przykładowymi rysunkami możesz zobaczyć tutaj: „co zawiera projekt?”
- potwierdzenie kwalifikacji zawodowych projektantów i ich przynależności do izby zawodowej w okresie opracowywania dokumentacji.
- katalog informacyjny ”Projekt Stodoła Rekomenduje„ o zalecanych produktach i technologiach
W zależności od specyfiki i przeznaczenia Obiektu Budowlanego zawartość Projektu Typowego może nieznacznie się różnić, przy czym różnice te wynikają wyłącznie z charakteru Obiektu Budowlanego oraz wymogów Prawa Budowlanego.
Projekt Typowy umożliwia uzyskanie pozwolenia na budowę po adaptacji do warunków lokalnych.
Do Projektu Typowego dokupić możesz dodatki takie m.in. jak:
– wersja elektroniczna części rysunkowej projektu w formacie .pdf
– podkłady do projektowania wnętrz .dwg
– dodatkowe egzemplarze projektu
– dodatkowe fotorealistyczne wizualizacje
– projekt instalacji domu inteligentengo
– dla wybranych projektów także szczegółowy kosztorys
Dodatki zmieniające projekt, pozwalają one w prosty sposób dostosować rozwiązania techniczne bez konieczności pełnej modyfikacji projektu.
Najczęściej wybierane dodatki to:
• strop monolityczny– projekt zamienny stropu- to idealne rozwiązanie, jeśli planujesz w pełni wykorzystać poddasze, na przykład na pokoje dla dzieci Zapewnia lepszą akustykę i większą swobodę aranżacji przestrzeni. W ramach dodatku wprowadzana jest zmiana stropu wraz z modyfikacją podparcia dachu oraz innych elementów konstrukcyjnych, które z niej wynikają.
• zmiana kąta nachylenia dachu– Jeśli na Twojej działce wymagany jest inny kąt dachu lub chcesz by poddasze było w większym stopniu – możesz zamówić zmianę kata dachu
• płyta fundamentowa– Płyta fundamentowa jest rozwiązaniem podnoszącym energooszczędność projektu lub jest zalecana przy niekorzystnych warunkach gruntowych. Dodatek to Projekt płyty fundamentowej do zamówionego projektu gotowego, który standardowo należy zaadaptować do warunków gruntowych.
• zmiana ogrzewania na gazowe,
Opis dodatków znajdziesz w zakładce DODATKI na stronie wybranego projektu. Dodatki zakupić możesz także w korzystnych cenowo PAKIETACH. Zapoznaj się z nimi po dodaniu do koszyka wybranego przez siebie Projektu.
ADAPTACJA PROJEKTU
Każdy projekt typowy umożliwia uzyskanie pozwolenia na budowę po adaptacji do warunków lokalnych przez wybranego przez Inwestora architekta adaptującego.
Adaptujący wykonuje projekt zagospodarowania terenu i dostosowuje projekt typowy do ustaleń Miejscowego Planu Zagospodarowania Przestrzennego (lub decyzji o Warunkach Zabudowy w przypadku braku planu), do terenu, do wymiarów działki, usytuowania względem stron świata, ukształtowania terenu, nośności gruntu, strefy klimatycznej i głębokości przemarzania, potrzeb przyszłych mieszkańców oraz aktualnie obowiązujących norm i przepisów. Nawet jeśli nie wprowadza on zmian do projektu typowego, podpisując dokumentację, staje się autorem projektu budowlanego i bierze odpowiedzialność za prawidłowość i kompletność dokumentacji.
Projektant dokonujący Adaptacji oraz sporządzający Projekt Budowlany, który zostanie wykorzystany w Procesie Budowlanym, jest zobowiązany w szczególności:
- dokonać analizy zgodności Projektu Standardowego z lokalnymi uwarunkowaniami miejscowego planu zagospodarowania przestrzennego lub warunków zabudowy i zagospodarowania terenu;
- nanieść na oryginale Projektu Standardowego trwałą techniką graficzną w kolorze czerwonym projektowany zakres zmian w zakresie rysunkowym i tekstowym;
- wykonać adaptację fundamentów do lokalnych warunków gruntowych;
- wykonać sprawdzenie konstrukcji całego Obiektu Budowlanego w zakresie jego dostosowania do lokalnych warunków, takich jak: np. gruntowych i obciążeń normatywnych wynikających ze strefy klimatycznej, bez możliwości wprowadzania zmian kształtu i wymiarów zewnętrznych Obiektu Budowlanego, bez zmiany kąta nachylenia połaci dachowej, wysokości ścian i wymiarów okien;
- dostosować instalację wodno-kanalizacyjną do warunków miejscowych na podstawie uzgodnionego z dostawcą wody projektu przyłączy;
- dostosować instalację wodno-kanalizacyjną w odniesieniu do instalacji i przyłącza gazu;
- wykonać adaptację projektowanej charakterystyki energetycznej wraz z analizą alternatywnych/odnawialnych źródeł ciepła dostosowująca do uwarunkowań na działce i wykonanych ewentualnych zmian w Projekcie Standardowym;
- podpisać Projekt Budowlany jako autor adaptacji Obiektu Budowlanego do konkretnej lokalizacji z podaniem rodzaju i numeru posiadanych uprawnień projektowych;
- wykonać sprawdzenie i adaptację Projektu Budowlanego oraz projektowanej charakterystyki energetycznej dostosowującą do zmian w obowiązujących przepisach i normach, jakie wprowadzono po dacie wykonania Projektu Standardowego;
- wykonać analizę obszaru oddziaływania Obiektu Budowlanego na sąsiednie nieruchomości.
Projekt zagospodarowania działki z częścią opisową należy trwale połączyć z Projektem Budowlanym lub zamieścić w osobnej oprawie: tomie (teczce), stanowiącym z zakupionym Projektem Typowym komplet Projektu Budowlanego.
Obecnie pracujemy nad mapą współpracujących z nami pracowni i architektów adaptujących. Ale być może już dziś będziemy mogli Ci pomóc- wyślij zapytanie na e-mail: [email protected] tytułem „Polecenie architekta adaptującego”
Bardzo często w naszych projektach stosujemy fragmentarycznie dachy płaskie nad garażami lub elementami dodatkowymi. W momencie jeśli Miejscowy Plan Zagospodarowania terenu lub Warunki zabudowy obowiązujące na Waszej działce, nie dopuszczają dachów płaskich. Rozwiązaniem może być adaptacja-zaprojektowanie tarasu na dachu płaskim z wyjście z pomieszczeń użytkowych (pokoi) lub poprzez schody z gruntu. Wyjście z dachu może być realizowane poprzez okna połaciowe typu tarasowego. Jest to rozwiązanie popularne i powszechnie stosowane.
Praktycznie w każdym naszym projekcie garaż jest dostawiony do głównej bryły budynku i można go bezproblemowo usunąć, lub przesunąć w inne miejsce. Można też zmienić jego wymiary. Wydłużenie garażu jest stosunkowo łatwe, jego poszerzenie wymaga sprawdzenia i ewentualnego wzmocnienia konstrukcji dachu. Taką zmianę można bezproblemowo wprowadzić na etapie adaptacji.
Jeśli nie znalazłeś projektu odpowiadającego Twoim potrzebom sprawdź Projekty Po zmianach są to alternatywne warianty projektów lub napisz do nas doradzimy. Zapoznaj się też z informacjami dotyczącymi zmian w projektach poniżej
PROJEKTY PO ZMIANACH
ZMIANY W PROJEKTACH
Wprowadzanie zmian w projektach gotowych jest czymś zupełnie naturalnym. Każda działka i każdy inwestor ma swoje indywidualne potrzeby, dlatego część osób decyduje się na dostosowania — tak samo jak przy adaptacji projektu do warunków lokalnych.
Nasze projekty są przygotowane w taki sposób, aby umożliwić wprowadzanie zmian na etapie adaptacji, wykonywanej przez lokalnego architekta.
Układy funkcjonalne i konstrukcyjne, planujemy uniwersalnie, tak aby pomieszczenia można było w razie potrzeby łączyć lub dzielić.
Zmiany na etapie adaptacji to najbardziej ekonomiczna i szybka droga, pozwalająca dostosować projekt do Twoich oczekiwań i konkretnej lokalizacji.
Najczęściej wprowadzane modyfikacje to m.in.:
• przesunięcia lub likwidacja ścianek działowych,
• powiększenie wybranych pomieszczeń,
• zmiana lokalizacji okien czy drzwi,
• dostosowanie układu pomieszczeń do stron świata lub kształtu działki.
Wszystkie te zmiany może wprowadzić architekt adaptujący – osoba posiadająca uprawnienia budowlane do projektowania i należąca do Izby Architektów lub Izby Inżynierów Budownictwa.
Dzięki temu proces pozostaje prosty, a projekt – elastyczny i gotowy do realizacji.
Na etapie zakupu możesz również wybrać dodatki dostępne do większości naszych projektów.
Pozwalają one w prosty sposób dostosować rozwiązania techniczne bez konieczności pełnej modyfikacji projektu.
Jeśli nie jesteś pewnie w jaki sposób wprowadzić daną zmianę, skontaktuj się z nami. Pomożemy.
DODATKOWE OPCJE PRZY ZAMÓWIENIU PROJEKTU
Na etapie zakupu możesz również wybrać dodatki dostępne do większości naszych projektów.
Pozwalają one w prosty sposób dostosować rozwiązania techniczne bez konieczności pełnej modyfikacji projektu.
Najczęściej wybierane dodatki to:
• strop monolityczny– projekt zamienny stropu- to idealne rozwiązanie, jeśli planujesz w pełni wykorzystać poddasze, na przykład na pokoje dla dzieci Zapewnia lepszą akustykę i większą swobodę aranżacji przestrzeni. W ramach dodatku wprowadzana jest zmiana stropu wraz z modyfikacją podparcia dachu oraz innych elementów konstrukcyjnych, które z niej wynikają.
• zmiana kąta nachylenia dachu– Jeśli na Twojej działce wymagany jest inny kąt dachu lub chcesz by poddasze było w większym stopniu – możesz zamówić zmianę kata dachu
• płyta fundamentowa– Płyta fundamentowa jest rozwiązaniem podnoszącym energooszczędność projektu lub jest zalecana przy niekorzystnych warunkach gruntowych. Dodatek to Projekt płyty fundamentowej do zamówionego projektu gotowego, który standardowo należy zaadaptować do warunków gruntowych.
• zmiana ogrzewania na gazowe,
Dzięki tym opcjom możesz dopasować projekt do swoich preferencji już na etapie zamówienia, bez konieczności zamawiania indywidualnych zmian, a pozostałe zmiany wprowadzić z architektem adaptującym
WIĘKSZE MODYFIKACJE I INDYWIDUALNE POTRZEBY
Jeśli planowane zmiany są bardziej rozległe i znacząco wpływają na konstrukcję lub wygląd budynku – warto skontaktować się z nami.
Doradzimy, w jaki sposób najlepiej wprowadzić daną funkcjonalność do projektu lub pomożemy dobrać rozwiązanie, które spełni Twoje oczekiwania.
W takiej sytuacji zachęcamy, aby napisać do nas i opisać swoje potrzeby.
Możemy wspólnie zastanowić się:
• który z naszych projektów będzie najlepszym punktem wyjścia,
• jakie zmiany można bezpiecznie wprowadzić,
• lub zaproponować inne rozwiązania, które lepiej odpowiedzą na Twoje założenia.
Naszym celem jest, abyś znalazł projekt, który idealnie odpowiada Twojemu stylowi życia.
Poniżej znajdziesz odpowiedzi na najczęściej zadawane pytania dotyczące zmian
ZMIANY W PROJEKCIE TYPOWYM
Najszybszą drogą jest wprowadzenie zmian na etapie adaptacji przez architekta adaptującego. Zmiany, które można wprowadzić do projektu typowego bez konieczności uzyskiwania zgody Sprzedawcy to:
- użycie innych materiałów budowlanych na konstrukcję Obiektu Budowlanego (fundamenty, ściany, stropy, schody, więźba dachowa) pod warunkiem zachowania wymagań konstrukcji i ochrony cieplnej Obiektu Budowlanego:
- zmiany usytuowania wewnętrznych ścian działowych, a także otworów drzwiowych wewnątrz Obiektu Budowlanego,
- zmiany usytuowania i geometrii schodów wewnętrznych,
- zmiany wysokości Obiektu Budowlanego (lub rzędnej wysokościowej kalenicy) o 10% (zwiększyć lub zmniejszyć), w szczególności: poziom posadzki parteru nad terenem projektowanym, wysokość kondygnacji parteru, wysokość ścianki kolankowej)
- zmiany kąta nachylenia dachu w zakresie 5 stopni (zwiększyć lub zmniejszyć)
- wykonania podpiwniczenia całości lub części Obiektu Budowlanego,
- zmiany przekroju filarów zewnętrznych i wewnętrznych.
- Wprowadzenie zmiany materiałów wykończeniowych wewnątrz i na zewnątrz Obiektu Budowlanego, a także zmiana kolorystyki zewnętrznej Obiektu Budowlanego, przy zachowaniu dbałości o estetykę.
- Pod warunkiem zachowania prawidłowej kompozycji elewacji (zachowanie wspólnej linii usytuowania otworów okiennych i drzwiowych nad sobą lub obok siebie) oraz zasad konstrukcji Kupujący może:
- wprowadzić zmiany w układzie okien i drzwi na elewacji: zlikwidować lub zaprojektować dodatkowe,
- zmieniać wymiary poziome i pionowe okien i drzwi,
- stosować pustaki szklane (luksfery),
- doprojektować dodatkowe wejścia do domu lub garażu,
- stosować dodatkowe okna połaciowe oraz wyłazy dachowe.
- Zmienić usytuowanie, zlikwidować, zaprojektować dodatkowe: kominy (dymowe, spalinowe, wentylacyjne) i wywiewki kanalizacyjne, dbając o prawidłowość rozwiązań technicznych i estetycznych.
- Pod warunkiem zadbania o estetykę Obiektu Budowlanego i zasady konstrukcji Kupujący może doprojektować (lub zlikwidować) dodatkowe elementy zewnętrzne Obiektu Budowlanego takie jak: garaż, tarasy naziemne, ogrody zimowe, a także elementy wewnętrzne, takie jak antresole.
- Zmienienie funkcji pomieszczeń, w tym także zaadaptowanie garażu lub innego pomieszczenia na cele mieszkalne, pod warunkiem dostosowania ich do stałego pobytu osób.
- Powiększenie lub zmniejszenie istniejącego w projekcie typowym garażu.
- Przeprojektowanie instalacji grzewczej, dostosowanie do innego źródła energii.
- Przeprojektowanie instalacji sanitarnej i elektrycznej.
W przypadku chęci wprowadzenia większych zmian warto skontaktować się z nami, potwierdzimy możliowśc wprowadzenia i możemy wydać bezpłatną zgodę (często wymagana jest ona w urzędzie).
W przypadku konieczności wprowadzenia zmian, które wykraczają zakres zmian nieistotnych, jesteś zobowiązany poinformować nas o tym, przedstawiając zakres planowanych zmian (najlepiej e-mail: [email protected], tytułem: Zgoda na zmiany w projekcie). Zapoznamy się z zakresem wprowadzanych zmian, a gdy wyrazimy zgodę na wprowadzenie zmiany w projekcie typowym zgoda zostanie przesłana w formacie PDF.
Zgody wydawane są bezpłatnie.
W celu potwierdzenia zakresu zmian, pakietu oraz terminu realizacji najlepiej jest przedstawić je drogą mailową, pisząc jakiego projektu dotyczą i (najlepiej w punktach) jakie zmiany w stosunku do projektu bazowego przedstawionego na stronie chcą Państwo wprowadzić. Możesz też zaznaczyć je na szkicu lub rzucie projektu ze sklepu. Jeśli nie jesteś pewien co do wyboru rozwiązania, opisz problem, a my zaproponujemy rozwiązanie. (Najlepiej e-mail: [email protected] tytułem Wprowadzenie zmian do projektu).
Po zaakceptowaniu pakietu i terminu wykonania możesz złożyć zamówienie w Sklepie poprzez dodanie do koszyka wybranego Projektu Typowego a następnie Produktu pod nazwą „Indywidualne zmiany w Projekcie Typowym”. Produkt „Indywidualne zmiany w projekcie typowym” można zamówić tylko razem z Projektem Typowym. Dlatego należy dodać do koszyka te dwie pozycje.
W „Indywidualnych zmianach w projekcie typowym” należy wypełnić pola- opis, data wykonania i cenę, zgodnie z ustaleniami we wcześniejszej korespondencji mailowej. Czas realizacji jest liczony od zamówienia wraz z opłatą faktury.
Procedura zakupu jest opisana także w regulaminie.
Jednocześnie przypominamy, że najprostszą drogą jest wprowadzenie zmian na etapie adaptacji przez architekta adaptującego.
Praktycznie w każdym naszym projekcie garaż jest dostawiony do głównej bryły budynku i można go bezproblemowo usunąć lub przesunąć w inne miejsce. Można też zmienić jego wymiary. Wydłużenie garażu jest stosunkowo łatwe, jego poszerzenie wymaga sprawdzenia i ewentualnego wzmocnienia konstrukcji dachu. Taką zmianę można bezproblemowo wprowadzić na etapie adaptacji.
Wszystkie realizacje naszych projektów zobaczysz tutaj:
Projekt Stodoła to nie tylko blog i projekty gotowe, to sposób myślenia o budowie o wyborach i kompromisach tak, by osiągnąć wymarzony cel w pełnym zadowoleniu. Projekt Stodoła to minimalizm, funkcjonalność prostota, energooszczędność, za którymi podąża ekonomika budowy.
Nasza modelowa Stodoła M jest już od 5 lat zamieszkana. Nie sądziliśmy, że nasze budowlane i aranżacyjne poczynania, które relacjonujemy na blogu i poprzez media społecznościowe stworzą społeczność dookoła tej idei. Można powiedzieć, że Projekt Stodoła to coś więcej niż projekty, to również forum wymiany opinii i doświadczeń. To społeczność, do której możesz należeć również Ty.
Dlatego zapraszamy Cię do dzielenia się postępami z budowy Twojej Stodoły, a może masz jakieś pytania i chciałbyś skorzystać z doświadczeń innych? Zachęcamy Cię do zapisania się do naszej grupy na Facebook’u – Projekt Stodoła- budowa domu typu stodoła, gdzie wielu inwestorów dzieli się swoimi doświadczeniami.
Sprawdź również profile na mediach społecznościowych inwestorów budujących domy wg naszych projektów:
RZUT:
SCHEMATYCZNE PRZEKROJE:
- Przekój 1
- Przekój 2
FUNKCJA:
Garaż dwustanowiskowy, z płaskim dachem o prostej, nowoczesnej bryle został zaprojektowany tak, aby pasował do architektury typu nowoczesna stodoła.
W budynku zaprojektowano dwa wygodne stanowiska postojowe, które zapewniają komfortowe parkowanie samochodów. Wewnątrz znajduje się także wydzielona wnęka gospodarcza, idealna na mały warsztat lub miejsce do przechowywania narzędzi i sprzętu ogrodowego. Dodatkowym udogodnieniem jest niezależne wejście, które ułatwia korzystanie z części gospodarczej bez konieczności otwierania bramy garażowej. Dla zwiększenia wygody użytkowania zaproponowano także zlew gospodarczy.
Dzięki prostej konstrukcji garaż wolnostojący można łatwo dopasować do stylu domu, zmieniając materiały wykończeniowe elewacji lub detale architektoniczne tak, aby całość tworzyła spójną i estetyczną zabudowę.
RZUT:
SCHEMATYCZNE PRZEKROJE:
- Przekrój 1
- Przekrój 2
FUNKCJA:
Garaż dwustanowiskowy, z płaskim dachem o prostej, nowoczesnej bryle został zaprojektowany tak, aby pasował do architektury typu nowoczesna stodoła.
W budynku zaprojektowano dwa wygodne stanowiska postojowe, które zapewniają komfortowe parkowanie samochodów. Wewnątrz znajduje się także wydzielona wnęka gospodarcza, idealna na mały warsztat lub miejsce do przechowywania narzędzi i sprzętu ogrodowego. Dodatkowym udogodnieniem jest niezależne wejście, które ułatwia korzystanie z części gospodarczej bez konieczności otwierania bramy garażowej. Dla zwiększenia wygody użytkowania zaproponowano także zlew gospodarczy.
Dzięki prostej konstrukcji garaż wolnostojący można łatwo dopasować do stylu domu, zmieniając materiały wykończeniowe elewacji lub detale architektoniczne tak, aby całość tworzyła spójną i estetyczną zabudowę.
Jesteś miłośnikiem motoryzacji, masz dużo samochodów lub może brakuje Ci miejsca do przechowywania? A może po prostu chcesz zbudować garaż w innym miejscu niezależnie od budynku, a przestrzeń przy budynku wykorzystać na siłownię? Mamy dla Ciebie świetną opcję! Wolnostojący garaż dwustanowiskowy to jeden z dodatków, jakie można dokupić do naszych Stodół. Jest on zaprojektowany w taki sposób, by wizualnie korespondować z budynkiem mieszkalnym. Garaż wolnostojący dwustanowiskowy w wersji D, dzięki prostej bryle i płaskiemu dachowi pasuje do większości projektów Stodoła, przy czym materiały wykończeniowe można dowolnie zmienić i dopasować do bryły domu. Świetnie kolorystycznie pasuje do Projekt Stodoła Optimum
Budynek świetnie sprawdzi się jako garaż lub dodatkowy budynek gospodarczy do składowania narzędzi, sprzętów niezbędnych do utrzymania działki, czy przedmiotów związanych z Twoją pasją. W budynku można dostosować dach do innego kąta nachylenia.
STANDARD BUDYNKU I TECHNOLOGIA BUDOWY
ŚCIANY MUROWANE: dwuwarstwowe – bloczek gazobetonowy + wełna skalna / styropian
ELEWACJA: tynk silikonowy + deska drewniana
STROP: strop drewniany + papa termozgrzewalna lub membrana EPDM
MINIMALNE WYMIARY DZIAŁKI:
Najlepszym usytuowaniem jest wjazd od strony dłuższego boku, ale bardzo dobrze sprawdzi się również wjazd od węższego boku(jako zmiana w projekcie), w zależności jak usytuujesz budynek główny na działce, tak by budynek garażu korespondował z budynkiem głównym.
MINIMALNE WYMIARY DZIAŁKI:
Najlepszym usytuowaniem jest wjazd od strony dłuższego boku, ale bardzo dobrze sprawdzi się również wjazd od węższego boku(jako zmiana w projekcie), w zależności jak usytuujesz budynek główny na działce, tak by budynek garażu korespondował z budynkiem głównym.
KOSZT BUDOWY
Dobrze wiemy, jak w dzisiejszych czasach trudno jest oszacować koszty budowy, szczególnie, że potrafią się one zmieniać z miesiąca na miesiąc. Bardzo dbamy o to, by nasze kosztorysy były jak najbardziej dokładne. Wyceniamy projekty bazując na sprawdzonych technologiach i dobrych materiałach, gdyż one gwarantują trwałość budynku i bezawaryjne funkcjonowanie. Nie zaniżamy cen. Projektując stosujemy proste rozwiązania, bez „ozdobników”, by nasze projekty z założenia nie były drogie w budowie, miały duże możliwości etapowania i wariantowania pracy.
Dołącz do naszej grupy na Facebooku Projekt Stodoła- budowa domu typu stodoła i porozmawiaj z inwestorami, którzy są w trakcie budowy lub już ją zakończyli.
KOSZTORYS UPROSZCZONY
w trakcie opracowania
BUDOWA DOMU STODOŁA & PREFABRYKOWANA STODOŁA
Zależy Ci na czasie, chciałbyś zbudować Stodołę nawet w 4-5 miesięcy? Jest to możliwe w przypadku budowy domu z prefabrykatu.
Nasze projekty mogą być z powodzeniem realizowane w technologii prefabrykatu.
Wystarczy zakupić projekt w naszej pracowni, a wybrana firma wykonawcza specjalizująca się w prefabrykacji może dostosować dokumentację projektową do swojej technologii. Taka adaptacja często wykonywana jest w ramach usługi oferowanej przez producenta prefabrykatów.
Budowa z prefabrykatów jest zazwyczaj droższa o ok. 15-25% w stosunku do kompleksowej, tradycyjnej budowy. Aby uzyskać dokładną wycenę, najlepiej skontaktować się bezpośrednio z wybranym wykonawcą.
Projekt Stodoła współpracuje z firmą wykonawczą w technologii prefabrykatu keramzytowego (tylko na obszarze w promieniu 100km od Wrocławia).
Jeśli interesuje Cię ten temat napisz do nas maila z informacją odnośnie lokalizacji inwestycji (tylko z okolic Wrocławia) na: [email protected]
Pakiet zawiera:
- Dodatkowy egzemplarz projektu
- Wersję elektroniczną
600 zł520 zł Oszczędzasz 80 zł
Pakiet zawiera:
- Dodatkowy egzemplarz projektu
- Wersję elektroniczną
- Podkłady do projektowania wnętrz w .dwg
1050 zł790 zł Oszczędzasz 260 zł
Pakiet zawiera:
- Dodatkowy egzemplarz projektu
- Wersję elektroniczną
- Podkłady do projektowania wnętrz w .dwg
- Rysunki elewacji w .dwg
- Model 3d budynku w .skp
2400 zł1550 zł Oszczędzasz 850 zł
2. Dobierz dodatki do projektu
Dodatki do projektu
Opisy informacyjne dodatków 
Wersja elektroniczna

Koszt 300 zł
Dodatkowy egzemplarz projektu

Koszt 300 zł
Podkład do projektowania wnętrz w .dwg

Koszt 300 zł
Dodatkowe wizualizacje

Koszt 750 zł
Model 3d budynku w .skp

Koszt 1150 zł
Kosztorys

Koszt 450 zł
Dobór i projekt fotowoltaiki

Koszt 800 zł
Smart Home konsultacja ze specjalistą
Zagadnienia z tematyki Smart Home poruszane na spotkaniu lub spotkaniu online
- Smart Home a zwykła instalacja – podstawowe różnice
- Systemy Smart
- Home – przewodowe i bezprzewodowe – szczerze, bez mitów
- Sterowanie oświetleniem
- Zacienianie – rolety, żaluzje, karnisze elektryczne
- Oszczędność energetyczna – zagadnienia związane ze sterowaniem ogrzewaniem i wentylacją – czy to się opłaca?
- Systemy audio multiroom
- Bezpieczeństwo – alarm i monitoring, kontrola dostępu
- Smart Gardens – inteligentne ogrody
- Po spotkaniu – sporządzenie wstępnego kosztorysu
Koszt 615 zł
Projekt wykonawczy ogrzewania podłogowego z pompą ciepła

- dokładnie rozrysowane rozstawy pętli grzewczych.
- dobór konkretnych materiałów i średnic
- zestawienie materiałów z kosztorysem
Czas realizacji ok. 2,5 tygodnia. Po zamówieniu prześlij do nas planowaną lokalizację budynku oraz materiał wykończeniowe podłogi.
Koszt 900 zł
Projekt wykonawczy wentylacji mechanicznej z rekuperacją

- dokładnie rozrysowane układ wentylacji
- dobór konkretnych materiałów i średnic
- zestawienie materiałów z kosztorysem
Czas realizacji ok. 2,5 tygodnia. .
Koszt 900 zł
Połączenie instalacji z kominkiem z płaszczem wodnym

Czas realizacji ok. 2,5 tygodnia. .
Koszt 400 zł
Wersja elektroniczna pdf
300 zł
Podkłady do projektowania wnętrz w .dwg
450 zł
Dodatkowe wizualizacje
950 zł
Dodatkowy egzemplarz projektu
300 zł
Makieta 3d budynku (mała)
550 zł
Makieta 3d budynku (duża)
950 zł
CO ZAWIERA PROJEKT?
W ramach zamówionego Produktu obejmującego Projekt Typowy Kupujący otrzymuje:
- 3 egzemplarze projektu ARCHITEKTONICZNO-BUDOWALNEGO i 2 egzemplarze projektu TECHNICZNEGO wraz z elementami wykonawczymi konstrukcji.
Szczegółowy opis zawartości projektu wraz z przykładowymi rysunkami możesz zobaczyć tutaj: „co zawiera projekt?”
- potwierdzenie kwalifikacji zawodowych projektantów i ich przynależności do izby zawodowej w okresie opracowywania dokumentacji.
- katalog informacyjny ”Projekt Stodoła Rekomenduje„ o zalecanych produktach i technologiach
W zależności od specyfiki i przeznaczenia Obiektu Budowlanego zawartość Projektu Typowego może nieznacznie się różnić, przy czym różnice te wynikają wyłącznie z charakteru Obiektu Budowlanego oraz wymogów Prawa Budowlanego.
Projekt Typowy umożliwia uzyskanie pozwolenia na budowę po adaptacji do warunków lokalnych.
Do Projektu Typowego dokupić możesz dodatki takie m.in. jak:
– wersja elektroniczna części rysunkowej projektu w formacie .pdf
– podkłady do projektowania wnętrz .dwg
– dodatkowe egzemplarze projektu
– dodatkowe fotorealistyczne wizualizacje
– projekt instalacji domu inteligentengo
– dla wybranych projektów także szczegółowy kosztorys
Dodatki zmieniające projekt, pozwalają one w prosty sposób dostosować rozwiązania techniczne bez konieczności pełnej modyfikacji projektu.
Najczęściej wybierane dodatki to:
• strop monolityczny– projekt zamienny stropu- to idealne rozwiązanie, jeśli planujesz w pełni wykorzystać poddasze, na przykład na pokoje dla dzieci Zapewnia lepszą akustykę i większą swobodę aranżacji przestrzeni. W ramach dodatku wprowadzana jest zmiana stropu wraz z modyfikacją podparcia dachu oraz innych elementów konstrukcyjnych, które z niej wynikają.
• zmiana kąta nachylenia dachu– Jeśli na Twojej działce wymagany jest inny kąt dachu lub chcesz by poddasze było w większym stopniu – możesz zamówić zmianę kata dachu
• płyta fundamentowa– Płyta fundamentowa jest rozwiązaniem podnoszącym energooszczędność projektu lub jest zalecana przy niekorzystnych warunkach gruntowych. Dodatek to Projekt płyty fundamentowej do zamówionego projektu gotowego, który standardowo należy zaadaptować do warunków gruntowych.
• zmiana ogrzewania na gazowe,
Opis dodatków znajdziesz w zakładce DODATKI na stronie wybranego projektu. Dodatki zakupić możesz także w korzystnych cenowo PAKIETACH. Zapoznaj się z nimi po dodaniu do koszyka wybranego przez siebie Projektu.
ADAPTACJA PROJEKTU
Każdy projekt typowy umożliwia uzyskanie pozwolenia na budowę po adaptacji do warunków lokalnych przez wybranego przez Inwestora architekta adaptującego.
Adaptujący wykonuje projekt zagospodarowania terenu i dostosowuje projekt typowy do ustaleń Miejscowego Planu Zagospodarowania Przestrzennego (lub decyzji o Warunkach Zabudowy w przypadku braku planu), do terenu, do wymiarów działki, usytuowania względem stron świata, ukształtowania terenu, nośności gruntu, strefy klimatycznej i głębokości przemarzania, potrzeb przyszłych mieszkańców oraz aktualnie obowiązujących norm i przepisów. Nawet jeśli nie wprowadza on zmian do projektu typowego, podpisując dokumentację, staje się autorem projektu budowlanego i bierze odpowiedzialność za prawidłowość i kompletność dokumentacji.
Projektant dokonujący Adaptacji oraz sporządzający Projekt Budowlany, który zostanie wykorzystany w Procesie Budowlanym, jest zobowiązany w szczególności:
- dokonać analizy zgodności Projektu Standardowego z lokalnymi uwarunkowaniami miejscowego planu zagospodarowania przestrzennego lub warunków zabudowy i zagospodarowania terenu;
- nanieść na oryginale Projektu Standardowego trwałą techniką graficzną w kolorze czerwonym projektowany zakres zmian w zakresie rysunkowym i tekstowym;
- wykonać adaptację fundamentów do lokalnych warunków gruntowych;
- wykonać sprawdzenie konstrukcji całego Obiektu Budowlanego w zakresie jego dostosowania do lokalnych warunków, takich jak: np. gruntowych i obciążeń normatywnych wynikających ze strefy klimatycznej, bez możliwości wprowadzania zmian kształtu i wymiarów zewnętrznych Obiektu Budowlanego, bez zmiany kąta nachylenia połaci dachowej, wysokości ścian i wymiarów okien;
- dostosować instalację wodno-kanalizacyjną do warunków miejscowych na podstawie uzgodnionego z dostawcą wody projektu przyłączy;
- dostosować instalację wodno-kanalizacyjną w odniesieniu do instalacji i przyłącza gazu;
- wykonać adaptację projektowanej charakterystyki energetycznej wraz z analizą alternatywnych/odnawialnych źródeł ciepła dostosowująca do uwarunkowań na działce i wykonanych ewentualnych zmian w Projekcie Standardowym;
- podpisać Projekt Budowlany jako autor adaptacji Obiektu Budowlanego do konkretnej lokalizacji z podaniem rodzaju i numeru posiadanych uprawnień projektowych;
- wykonać sprawdzenie i adaptację Projektu Budowlanego oraz projektowanej charakterystyki energetycznej dostosowującą do zmian w obowiązujących przepisach i normach, jakie wprowadzono po dacie wykonania Projektu Standardowego;
- wykonać analizę obszaru oddziaływania Obiektu Budowlanego na sąsiednie nieruchomości.
Projekt zagospodarowania działki z częścią opisową należy trwale połączyć z Projektem Budowlanym lub zamieścić w osobnej oprawie: tomie (teczce), stanowiącym z zakupionym Projektem Typowym komplet Projektu Budowlanego.
Obecnie pracujemy nad mapą współpracujących z nami pracowni i architektów adaptujących. Ale być może już dziś będziemy mogli Ci pomóc- wyślij zapytanie na e-mail: [email protected] tytułem „Polecenie architekta adaptującego”
Bardzo często w naszych projektach stosujemy fragmentarycznie dachy płaskie nad garażami lub elementami dodatkowymi. W momencie jeśli Miejscowy Plan Zagospodarowania terenu lub Warunki zabudowy obowiązujące na Waszej działce, nie dopuszczają dachów płaskich. Rozwiązaniem może być adaptacja-zaprojektowanie tarasu na dachu płaskim z wyjście z pomieszczeń użytkowych (pokoi) lub poprzez schody z gruntu. Wyjście z dachu może być realizowane poprzez okna połaciowe typu tarasowego. Jest to rozwiązanie popularne i powszechnie stosowane.
Praktycznie w każdym naszym projekcie garaż jest dostawiony do głównej bryły budynku i można go bezproblemowo usunąć, lub przesunąć w inne miejsce. Można też zmienić jego wymiary. Wydłużenie garażu jest stosunkowo łatwe, jego poszerzenie wymaga sprawdzenia i ewentualnego wzmocnienia konstrukcji dachu. Taką zmianę można bezproblemowo wprowadzić na etapie adaptacji.
Wszystkie realizacje naszych projektów zobaczysz tutaj:
Projekt Stodoła to nie tylko blog i projekty gotowe, to sposób myślenia o budowie o wyborach i kompromisach tak, by osiągnąć wymarzony cel w pełnym zadowoleniu. Projekt Stodoła to minimalizm, funkcjonalność prostota, energooszczędność, za którymi podąża ekonomika budowy.
Nasza modelowa Stodoła M jest już od 5 lat zamieszkana. Nie sądziliśmy, że nasze budowlane i aranżacyjne poczynania, które relacjonujemy na blogu i poprzez media społecznościowe stworzą społeczność dookoła tej idei. Można powiedzieć, że Projekt Stodoła to coś więcej niż projekty, to również forum wymiany opinii i doświadczeń. To społeczność, do której możesz należeć również Ty.
Dlatego zapraszamy Cię do dzielenia się postępami z budowy Twojej Stodoły, a może masz jakieś pytania i chciałbyś skorzystać z doświadczeń innych? Zachęcamy Cię do zapisania się do naszej grupy na Facebook’u – Projekt Stodoła- budowa domu typu stodoła, gdzie wielu inwestorów dzieli się swoimi doświadczeniami.
Sprawdź również profile na mediach społecznościowych inwestorów budujących domy wg naszych projektów:
Jeśli nie znalazłeś projektu odpowiadającego Twoim potrzebom sprawdź Projekty Po zmianach są to alternatywne warianty projektów lub napisz do nas doradzimy. Zapoznaj się też z informacjami dotyczącymi zmian w projektach poniżej
PROJEKTY PO ZMIANACH
ZMIANY W PROJEKTACH
Wprowadzanie zmian w projektach gotowych jest czymś zupełnie naturalnym. Każda działka i każdy inwestor ma swoje indywidualne potrzeby, dlatego część osób decyduje się na dostosowania — tak samo jak przy adaptacji projektu do warunków lokalnych.
Nasze projekty są przygotowane w taki sposób, aby umożliwić wprowadzanie zmian na etapie adaptacji, wykonywanej przez lokalnego architekta.
Układy funkcjonalne i konstrukcyjne, planujemy uniwersalnie, tak aby pomieszczenia można było w razie potrzeby łączyć lub dzielić.
Zmiany na etapie adaptacji to najbardziej ekonomiczna i szybka droga, pozwalająca dostosować projekt do Twoich oczekiwań i konkretnej lokalizacji.
Najczęściej wprowadzane modyfikacje to m.in.:
• przesunięcia lub likwidacja ścianek działowych,
• powiększenie wybranych pomieszczeń,
• zmiana lokalizacji okien czy drzwi,
• dostosowanie układu pomieszczeń do stron świata lub kształtu działki.
Wszystkie te zmiany może wprowadzić architekt adaptujący – osoba posiadająca uprawnienia budowlane do projektowania i należąca do Izby Architektów lub Izby Inżynierów Budownictwa.
Dzięki temu proces pozostaje prosty, a projekt – elastyczny i gotowy do realizacji.
Na etapie zakupu możesz również wybrać dodatki dostępne do większości naszych projektów.
Pozwalają one w prosty sposób dostosować rozwiązania techniczne bez konieczności pełnej modyfikacji projektu.
Jeśli nie jesteś pewnie w jaki sposób wprowadzić daną zmianę, skontaktuj się z nami. Pomożemy.
DODATKOWE OPCJE PRZY ZAMÓWIENIU PROJEKTU
Na etapie zakupu możesz również wybrać dodatki dostępne do większości naszych projektów.
Pozwalają one w prosty sposób dostosować rozwiązania techniczne bez konieczności pełnej modyfikacji projektu.
Najczęściej wybierane dodatki to:
• strop monolityczny– projekt zamienny stropu- to idealne rozwiązanie, jeśli planujesz w pełni wykorzystać poddasze, na przykład na pokoje dla dzieci Zapewnia lepszą akustykę i większą swobodę aranżacji przestrzeni. W ramach dodatku wprowadzana jest zmiana stropu wraz z modyfikacją podparcia dachu oraz innych elementów konstrukcyjnych, które z niej wynikają.
• zmiana kąta nachylenia dachu– Jeśli na Twojej działce wymagany jest inny kąt dachu lub chcesz by poddasze było w większym stopniu – możesz zamówić zmianę kata dachu
• płyta fundamentowa– Płyta fundamentowa jest rozwiązaniem podnoszącym energooszczędność projektu lub jest zalecana przy niekorzystnych warunkach gruntowych. Dodatek to Projekt płyty fundamentowej do zamówionego projektu gotowego, który standardowo należy zaadaptować do warunków gruntowych.
• zmiana ogrzewania na gazowe,
Dzięki tym opcjom możesz dopasować projekt do swoich preferencji już na etapie zamówienia, bez konieczności zamawiania indywidualnych zmian, a pozostałe zmiany wprowadzić z architektem adaptującym
WIĘKSZE MODYFIKACJE I INDYWIDUALNE POTRZEBY
Jeśli planowane zmiany są bardziej rozległe i znacząco wpływają na konstrukcję lub wygląd budynku – warto skontaktować się z nami.
Doradzimy, w jaki sposób najlepiej wprowadzić daną funkcjonalność do projektu lub pomożemy dobrać rozwiązanie, które spełni Twoje oczekiwania.
W takiej sytuacji zachęcamy, aby napisać do nas i opisać swoje potrzeby.
Możemy wspólnie zastanowić się:
• który z naszych projektów będzie najlepszym punktem wyjścia,
• jakie zmiany można bezpiecznie wprowadzić,
• lub zaproponować inne rozwiązania, które lepiej odpowiedzą na Twoje założenia.
Naszym celem jest, abyś znalazł projekt, który idealnie odpowiada Twojemu stylowi życia.
Poniżej znajdziesz odpowiedzi na najczęściej zadawane pytania dotyczące zmian
ZMIANY W PROJEKCIE TYPOWYM
Najszybszą drogą jest wprowadzenie zmian na etapie adaptacji przez architekta adaptującego. Zmiany, które można wprowadzić do projektu typowego bez konieczności uzyskiwania zgody Sprzedawcy to:
- użycie innych materiałów budowlanych na konstrukcję Obiektu Budowlanego (fundamenty, ściany, stropy, schody, więźba dachowa) pod warunkiem zachowania wymagań konstrukcji i ochrony cieplnej Obiektu Budowlanego:
- zmiany usytuowania wewnętrznych ścian działowych, a także otworów drzwiowych wewnątrz Obiektu Budowlanego,
- zmiany usytuowania i geometrii schodów wewnętrznych,
- zmiany wysokości Obiektu Budowlanego (lub rzędnej wysokościowej kalenicy) o 10% (zwiększyć lub zmniejszyć), w szczególności: poziom posadzki parteru nad terenem projektowanym, wysokość kondygnacji parteru, wysokość ścianki kolankowej)
- zmiany kąta nachylenia dachu w zakresie 5 stopni (zwiększyć lub zmniejszyć)
- wykonania podpiwniczenia całości lub części Obiektu Budowlanego,
- zmiany przekroju filarów zewnętrznych i wewnętrznych.
- Wprowadzenie zmiany materiałów wykończeniowych wewnątrz i na zewnątrz Obiektu Budowlanego, a także zmiana kolorystyki zewnętrznej Obiektu Budowlanego, przy zachowaniu dbałości o estetykę.
- Pod warunkiem zachowania prawidłowej kompozycji elewacji (zachowanie wspólnej linii usytuowania otworów okiennych i drzwiowych nad sobą lub obok siebie) oraz zasad konstrukcji Kupujący może:
- wprowadzić zmiany w układzie okien i drzwi na elewacji: zlikwidować lub zaprojektować dodatkowe,
- zmieniać wymiary poziome i pionowe okien i drzwi,
- stosować pustaki szklane (luksfery),
- doprojektować dodatkowe wejścia do domu lub garażu,
- stosować dodatkowe okna połaciowe oraz wyłazy dachowe.
- Zmienić usytuowanie, zlikwidować, zaprojektować dodatkowe: kominy (dymowe, spalinowe, wentylacyjne) i wywiewki kanalizacyjne, dbając o prawidłowość rozwiązań technicznych i estetycznych.
- Pod warunkiem zadbania o estetykę Obiektu Budowlanego i zasady konstrukcji Kupujący może doprojektować (lub zlikwidować) dodatkowe elementy zewnętrzne Obiektu Budowlanego takie jak: garaż, tarasy naziemne, ogrody zimowe, a także elementy wewnętrzne, takie jak antresole.
- Zmienienie funkcji pomieszczeń, w tym także zaadaptowanie garażu lub innego pomieszczenia na cele mieszkalne, pod warunkiem dostosowania ich do stałego pobytu osób.
- Powiększenie lub zmniejszenie istniejącego w projekcie typowym garażu.
- Przeprojektowanie instalacji grzewczej, dostosowanie do innego źródła energii.
- Przeprojektowanie instalacji sanitarnej i elektrycznej.
W przypadku chęci wprowadzenia większych zmian warto skontaktować się z nami, potwierdzimy możliowśc wprowadzenia i możemy wydać bezpłatną zgodę (często wymagana jest ona w urzędzie).
W przypadku konieczności wprowadzenia zmian, które wykraczają zakres zmian nieistotnych, jesteś zobowiązany poinformować nas o tym, przedstawiając zakres planowanych zmian (najlepiej e-mail: [email protected], tytułem: Zgoda na zmiany w projekcie). Zapoznamy się z zakresem wprowadzanych zmian, a gdy wyrazimy zgodę na wprowadzenie zmiany w projekcie typowym zgoda zostanie przesłana w formacie PDF.
Zgody wydawane są bezpłatnie.
W celu potwierdzenia zakresu zmian, pakietu oraz terminu realizacji najlepiej jest przedstawić je drogą mailową, pisząc jakiego projektu dotyczą i (najlepiej w punktach) jakie zmiany w stosunku do projektu bazowego przedstawionego na stronie chcą Państwo wprowadzić. Możesz też zaznaczyć je na szkicu lub rzucie projektu ze sklepu. Jeśli nie jesteś pewien co do wyboru rozwiązania, opisz problem, a my zaproponujemy rozwiązanie. (Najlepiej e-mail: [email protected] tytułem Wprowadzenie zmian do projektu).
Po zaakceptowaniu pakietu i terminu wykonania możesz złożyć zamówienie w Sklepie poprzez dodanie do koszyka wybranego Projektu Typowego a następnie Produktu pod nazwą „Indywidualne zmiany w Projekcie Typowym”. Produkt „Indywidualne zmiany w projekcie typowym” można zamówić tylko razem z Projektem Typowym. Dlatego należy dodać do koszyka te dwie pozycje.
W „Indywidualnych zmianach w projekcie typowym” należy wypełnić pola- opis, data wykonania i cenę, zgodnie z ustaleniami we wcześniejszej korespondencji mailowej. Czas realizacji jest liczony od zamówienia wraz z opłatą faktury.
Procedura zakupu jest opisana także w regulaminie.
Jednocześnie przypominamy, że najprostszą drogą jest wprowadzenie zmian na etapie adaptacji przez architekta adaptującego.
Praktycznie w każdym naszym projekcie garaż jest dostawiony do głównej bryły budynku i można go bezproblemowo usunąć lub przesunąć w inne miejsce. Można też zmienić jego wymiary. Wydłużenie garażu jest stosunkowo łatwe, jego poszerzenie wymaga sprawdzenia i ewentualnego wzmocnienia konstrukcji dachu. Taką zmianę można bezproblemowo wprowadzić na etapie adaptacji.


















2